la Myriam

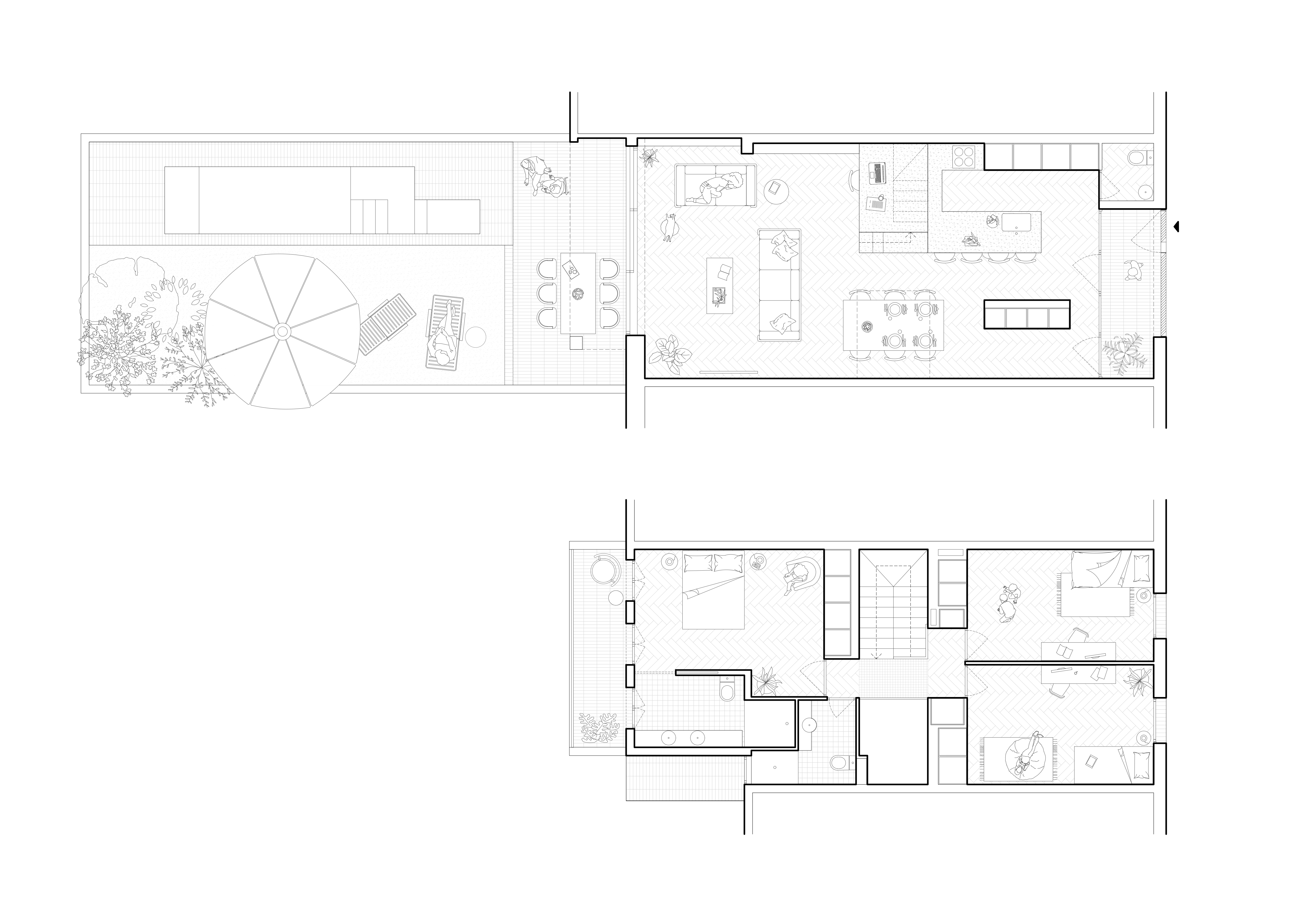
In the Myriam project, the layout of a single-family home is studied and developed through the incorporation of a new staircase core that resolves vertical circulations and the distribution of rooms. This volume is based on a stony topographic platform with a solid appearance, adapting to the uses of staircase, study, and kitchen. From this platform emerges, without making any contact, a white metal staircase that connects to the upper floors. The materiality, language, and color palette deliberately diverge from the tectonic platform. Wood appears as a third element in this composition, providing the desired warmth.

CRU innovative house renovation project in Barcelona. La Myriam, a house converted into a modern and bright space
CRU innovative house renovation project in Barcelona. La Myriam, a house converted into a modern and bright space
CRU innovative house renovation project in Barcelona. La Myriam, a house converted into a modern and bright space
CRU innovative house renovation project in Barcelona. La Myriam, a house converted into a modern and bright space
CRU innovative house renovation project in Barcelona. La Myriam, a house converted into a modern and bright space
CRU innovative house renovation project in Barcelona. La Myriam, a house converted into a modern and bright space
CRU innovative house renovation project in Barcelona. La Myriam, a house converted into a modern and bright space
CRU innovative house renovation project in Barcelona. La Myriam, a house converted into a modern and bright space
CRU innovative house renovation project in Barcelona. La Myriam, a house converted into a modern and bright space
CRU innovative house renovation project in Barcelona. La Myriam, a house converted into a modern and bright space
CRU innovative house renovation project in Barcelona. La Myriam, a house converted into a modern and bright space
CRU innovative house renovation project in Barcelona. La Myriam, a house converted into a modern and bright space
CRU innovative house renovation project in Barcelona. La Myriam, a house converted into a modern and bright space
CRU innovative house renovation project in Barcelona. La Myriam, a house converted into a modern and bright space
CRU innovative house renovation project in Barcelona. La Myriam, a house converted into a modern and bright space
CRU innovative house renovation project in Barcelona. La Myriam, a house converted into a modern and bright space
CRU innovative house renovation project in Barcelona. La Myriam, a house converted into a modern and bright space