la Dominique

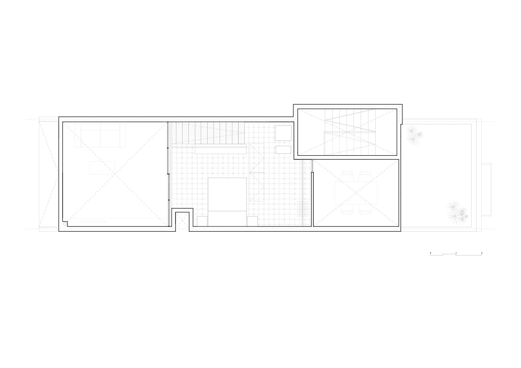
When we stripped la Dominique we found an attic with many volumetric possibilities thanks to its hidden gable roof.
We unfolded a traditional slab covering the inner area of the apartment. This platform fragmented the lecture of the whole volume into two levels and therefore generated two scales within the dwelling: one extremely human, limited by the platform at 2,20 meters, in which we placed the entrance and the wet areas –kitchen and bathroom–; and the other scale offered by the spaces in contact with the façades. These last ones multiply their height by reaching the original sloped roof.

CRU innovative flat renovation project in Barcelona. La Dominique, an attic with many volumetric possibilities.
CRU innovative flat renovation project in Barcelona. La Dominique, an attic with many volumetric possibilities.
CRU innovative flat renovation project in Barcelona. La Dominique, an attic with many volumetric possibilities.
CRU innovative flat renovation project in Barcelona. La Dominique, an attic with many volumetric possibilities.
CRU innovative flat renovation project in Barcelona. La Dominique, an attic with many volumetric possibilities.
CRU innovative flat renovation project in Barcelona. La Dominique, an attic with many volumetric possibilities.
CRU innovative flat renovation project in Barcelona. La Dominique, an attic with many volumetric possibilities.
CRU innovative flat renovation project in Barcelona. La Dominique, an attic with many volumetric possibilities.
CRU innovative flat renovation project in Barcelona. La Dominique, an attic with many volumetric possibilities.
CRU innovative flat renovation project in Barcelona. La Dominique, an attic with many volumetric possibilities.
CRU innovative flat renovation project in Barcelona. La Dominique, an attic with many volumetric possibilities.
CRU innovative flat renovation project in Barcelona. La Dominique, an attic with many volumetric possibilities.
CRU innovative flat renovation project in Barcelona. La Dominique, an attic with many volumetric possibilities.
CRU innovative flat renovation project in Barcelona. La Dominique, an attic with many volumetric possibilities.
CRU innovative flat renovation project in Barcelona. La Dominique, an attic with many volumetric possibilities.
CRU innovative flat renovation project in Barcelona. La Dominique, an attic with many volumetric possibilities.
CRU innovative flat renovation project in Barcelona. La Dominique, an attic with many volumetric possibilities.