la Cris

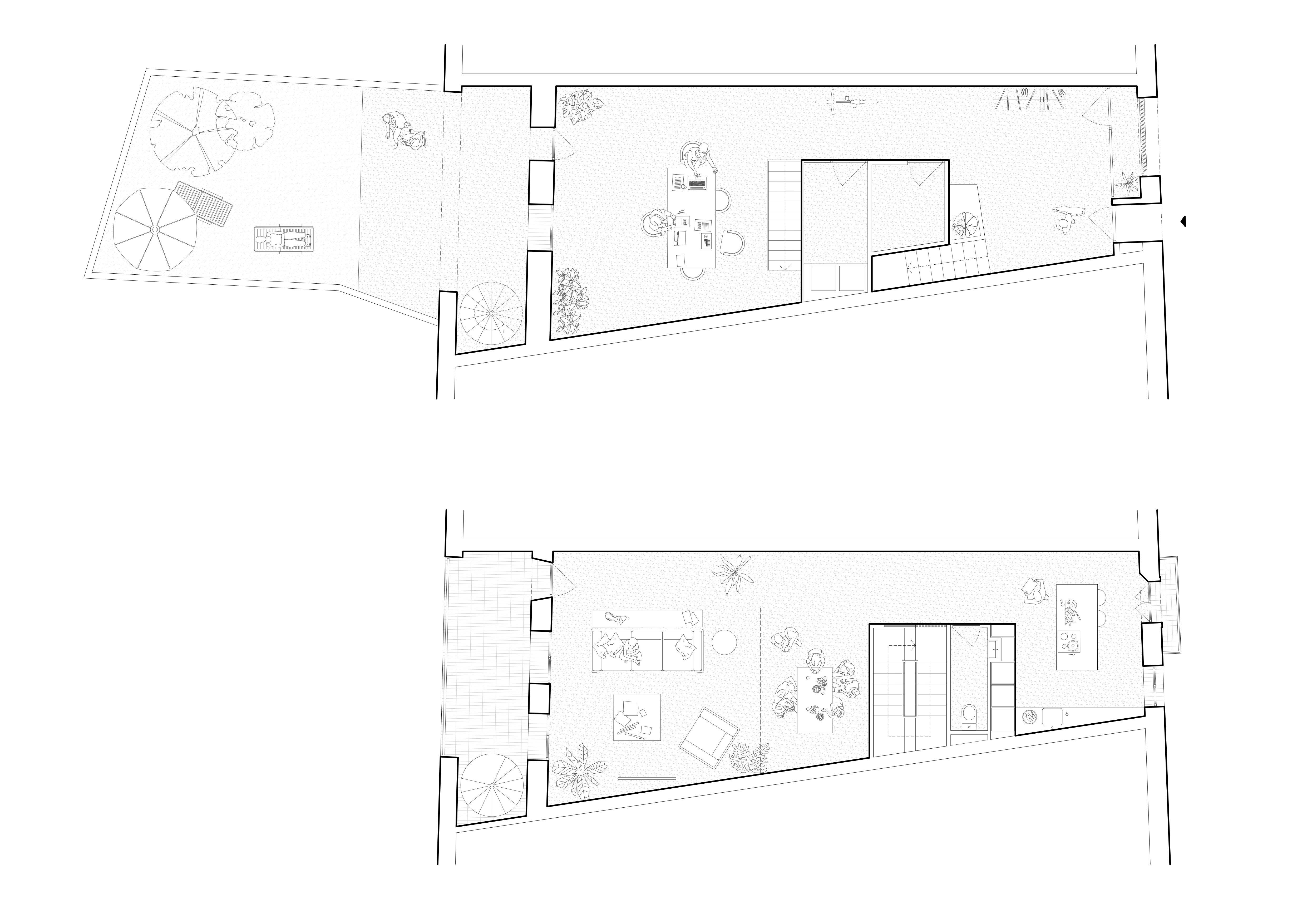
La Cristina is a sectional work, hollowing out different floors of a traditional terraced house. This creates a new triple-height space that connects various areas of the house and enhances the original rear facade, now turned into a perforated backdrop that brings light and character to the previously hidden space. The consolidation of the deteriorated party walls is resolved through the projection of concrete with a smooth, organic, and spongy appearance. The container is conceived as a unique and homogeneous envelope. The original structural system of wooden beams is maintained, restored, and lightened to use it both as the support for the permeable platform connecting to the rear facade and as a legacy of the preexisting structure.

CRU innovative house renovation project in Navarcles. La Cris, a house converted into a modern and bright space
CRU innovative house renovation project in Navarcles. La Cris, a house converted into a modern and bright space
CRU innovative house renovation project in Navarcles. La Cris, a house converted into a modern and bright space
CRU innovative house renovation project in Navarcles. La Cris, a house converted into a modern and bright space
CRU innovative house renovation project in Navarcles. La Cris, a house converted into a modern and bright space
CRU innovative house renovation project in Navarcles. La Cris, a house converted into a modern and bright space
CRU innovative house renovation project in Navarcles. La Cris, a house converted into a modern and bright space
CRU innovative house renovation project in Navarcles. La Cris, a house converted into a modern and bright space
CRU innovative house renovation project in Navarcles. La Cris, a house converted into a modern and bright space
CRU innovative house renovation project in Navarcles. La Cris, a house converted into a modern and bright space
CRU innovative house renovation project in Navarcles. La Cris, a house converted into a modern and bright space
CRU innovative house renovation project in Navarcles. La Cris, a house converted into a modern and bright space