la Petra

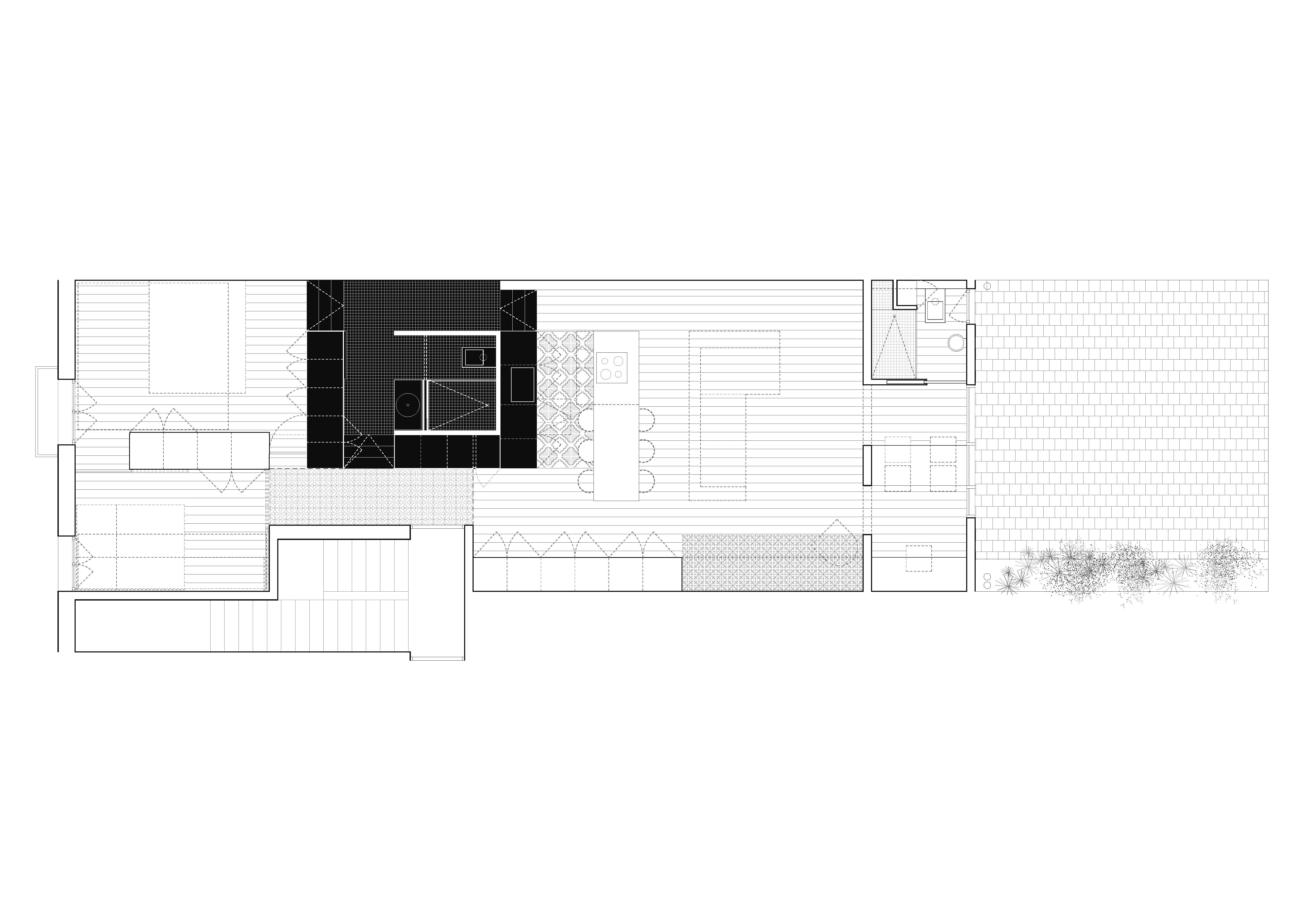
La Petra appears to us in its original state, an obsolete dwelling located in a building between party walls in the Gràcia neighborhood. After freeing it from the existing partitions, the strategy is to generate a new independent box that acts as a distributor element, segregating the different uses of the dwelling, while containing the kitchen, the main bathroom, and the storage space. This box allows the space to be read as a unit, while also having the capacity to visually segregate it according to the situations. The project aims to revalue the original materials and elements of the building such as the wooden beams, the party walls with references to the old roof, and the hydraulic pavements, while at the same time inserting new materials, establishing an intentional constant dialogue, from the contrast, with the pre-existence.

CRU innovative flat renovation project in Barcelona. La Petra, an old apartment renovated with a strong Barcelona character
CRU innovative flat renovation project in Barcelona. La Petra, an old apartment renovated with a strong Barcelona character
CRU innovative flat renovation project in Barcelona. La Petra, an old apartment renovated with a strong Barcelona character
CRU innovative flat renovation project in Barcelona. La Petra, an old apartment renovated with a strong Barcelona character
CRU innovative flat renovation project in Barcelona. La Petra, an old apartment renovated with a strong Barcelona character
CRU innovative flat renovation project in Barcelona. La Petra, an old apartment renovated with a strong Barcelona character
CRU innovative flat renovation project in Barcelona. La Petra, an old apartment renovated with a strong Barcelona character
CRU innovative flat renovation project in Barcelona. La Petra, an old apartment renovated with a strong Barcelona character
CRU innovative flat renovation project in Barcelona. La Petra, an old apartment renovated with a strong Barcelona character
CRU innovative flat renovation project in Barcelona. La Petra, an old apartment renovated with a strong Barcelona character
CRU innovative flat renovation project in Barcelona. La Petra, an old apartment renovated with a strong Barcelona character
CRU innovative flat renovation project in Barcelona. La Petra, an old apartment renovated with a strong Barcelona character
CRU innovative flat renovation project in Barcelona. La Petra, an old apartment renovated with a strong Barcelona character