la Olivia

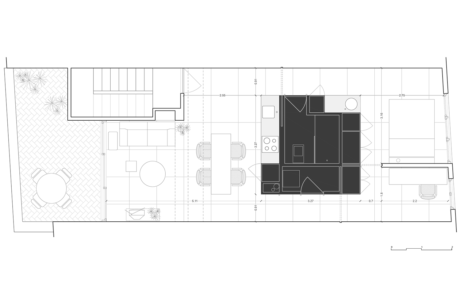
After getting rid of the existing partitions, we built up a freestanding box that acts as a filter between the daytime and the night-time zones and in which the kitchen, wet rooms and storage are fit together. The box allows the reading of the space as a whole, while has the ability to segregate it.

CRU innovative flat renovation project in Barcelona. La Olivia, a freestanding box that acts as a filter between the daytime and the night-time zones" height="">
CRU innovative flat renovation project in Barcelona. La Olivia, a freestanding box that acts as a filter between the daytime and the night-time zones
CRU innovative flat renovation project in Barcelona. La Olivia, a freestanding box that acts as a filter between the daytime and the night-time zones
CRU innovative flat renovation project in Barcelona. La Olivia, a freestanding box that acts as a filter between the daytime and the night-time zones
CRU innovative flat renovation project in Barcelona. La Olivia, a freestanding box that acts as a filter between the daytime and the night-time zones
CRU innovative flat renovation project in Barcelona. La Olivia, a freestanding box that acts as a filter between the daytime and the night-time zones
CRU innovative flat renovation project in Barcelona. La Olivia, a freestanding box that acts as a filter between the daytime and the night-time zones
CRU innovative flat renovation project in Barcelona. La Olivia, a freestanding box that acts as a filter between the daytime and the night-time zones
CRU innovative flat renovation project in Barcelona. La Olivia, a freestanding box that acts as a filter between the daytime and the night-time zones
CRU innovative flat renovation project in Barcelona. La Olivia, a freestanding box that acts as a filter between the daytime and the night-time zones
CRU innovative flat renovation project in Barcelona. La Olivia, a freestanding box that acts as a filter between the daytime and the night-time zones
CRU innovative flat renovation project in Barcelona. La Olivia, a freestanding box that acts as a filter between the daytime and the night-time zones
CRU innovative flat renovation project in Barcelona. La Olivia, a freestanding box that acts as a filter between the daytime and the night-time zones
CRU innovative flat renovation project in Barcelona. La Olivia, a freestanding box that acts as a filter between the daytime and the night-time zones